Pinhel vai dispor de um Parque de Caravanismo
Investimento na ordem dos 237 mil euros
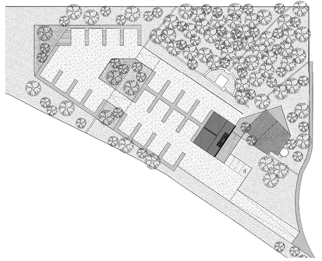
Recentemente em reunião do Executivo Municipal, foi aprovado a criação de um Parque de Caravanismo na cidade de Pinhel, que virá a ser construído junto às Piscinas Municipais cobertas.Vai ter uma área com cerca de 10 mil metros quadrados, este Parque de Caravanismo prevê a criação de 20 lugares para caravanas ou autocaravanas.
Paralelamente, será construído um edifício de apoio e reabilitado um outro existente no terreno, sendo este último aproveitado para instalações sanitárias.
A pensar no bem-estar e conforto dos caravanistas, o equipamento procurará manter os espaços verdes pré-existentes, bem como criar algumas zonas de sombra e ainda uma zona coberta onde os utilizadores poderão fazer as suas refeições.De salientar que, o projeto para o Parque de Caravanismo foi desenvolvido pelos Serviços Técnicos da autarquia, prevendo-se um investimento na ordem dos 237 mil euros.
Face a isso, o Executivo Municipal aprovou também por unanimidade a abertura de concurso para contratação da empreitada.
Para o Presidente da Câmara Municipal de Pinhel, Rui Ventura, “este é um equipamento que faz falta a Pinhel, tendo em conta o aumento da procura por parte de visitantes e turistas, havendo também necessidade de responder às necessidades dos caravanistas”.
Aqui está mais uma forma de atração de turistas e visitantes para o concelho de Pinhel.






Publicar comentário
Tem de iniciar a sessão para publicar um comentário.